2008 SPP Conforming Plot Plan
2. DETAILS:
1538 Randall Court, Los Angeles, CA, 90065
1538 Randall Court Parcel Plans (Case No. DIR-2008-2262-SPP, ENV-2008-2263-CE, Permit No. 08010-10000-01335):

1538 Randall Court LA County Assessors Map (APN 5464-030-027):

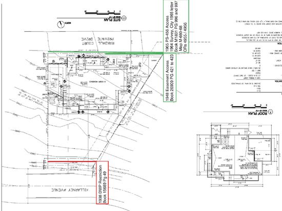
1538 Randall Court PS-456 Contour Map (1948 Easement Deed [Lot 28/] 40 is the easterly triangular lot portion of 1538 Randall Court, APN 5464-030-027):

Based upon:
April 1948 County Easement Deed
1538 Randall Court Government Data:

City of Los Angeles Randall Ct Topographic Map (Including 1538 Randall Ct Location)

1538 Randall Court Plot Photos:

1538 Randall Court Simplified Diagram:

Note: The only access is via Randall Court address, which is reflected on the deed, and in City & County records. Due to the southerly aerial easement, access via Killarney Avenue is prohibited.
LÀ DCP Permit No. 08010-10000-01335:

ZIMAS Parcel Profile:

LA DCP City Planning Legal Address (w.r.t LA City Planning & Parcel Deed):


LA DCP City Planning SPP Case Summary:

LA DCP City Planning 1538 Randall Court Planning ENV CE Case Summary:

LA DCP City Planning 1538 Randall Court Parcel Profile Report (CD-1 – Ed P. Reyes, CD-14 – Jose Huizar):

Jose Huizar (US Case CR 20-326-JFW) 2008 [T0] – 2018:
George Esparza (US Case 2:20-cr-00208-SV):
1538 Randall Court, Los Angeles, CA, 90065
Based upon these historical and current public, state, and county records, this property is accessed via Randall Ct., at the address of 1538 Randall Ct. There is no direct access via Killarney Ave. The 2008 house building plan is conforming to code, and correctly oriented with the Randall Ct. ingress & egress roadway easement. It’s a shame one has to pay bribe stipends to the City of Los Angeles Council in order to acquire building permits…which appears to be the cause of the escalated, way above-average house prices and chronic LA county housing shortage…which the effect is the precipitous decline in quality of life.
LikeLiked by 1 person
Yes, in addition to requiring political bribe payments which is illegal, the Los Angeles City Council, via Zoning Administrators, is also using Zoning Determinations and public hearings, on residential entitlement applications to reject those applications and segregate the city by race to the greatest extent possible. Councilmemebers have already plead GUILTY to soliciting bribes in their pay-for-play building permit scemes. There is no constitutional 13th amendment in the City of Los Angeles with this abuse of authority, and criminal practices.
LikeLiked by 1 person
With all of the overwhelming documented evidence, with LA City Councilmembers and their co-conspirators, guilty pleas in federal court for pay-to-play, bribery, RICO, intimidation of constituents & attorneys, honest services fraud, etc. why have US Department of Justice cases like this Randall Court one not been remedied? Who is protecting the Los Angeles City Council & Mayor?
LikeLike
19 June 2021
LikeLike
According to records, between the 2008 City Zoning Administrator abuse of power and Mount Washington Homeowners Alliance (MWHA) overreach, and their Judge Luis Lavin, they had three hearings not in accordance with the laws of the nation. The City Council, Area Planning Commission (APC) Sharon Lowe & ‘Michael Fleming and LASC’ were permitted to incite an atmosphere of prejudice, in order to facilitate restrictive covenants and bribes. During the proceedings, the very air reaked with the rancor of intolerant malice. Bringing to the proceedings, APC proceedings not authorized by law, an absence of probable cause in MHWA accusations boded the clanging of shackles and brings to our minds the dungeons of the Czars, not the flag-backed liberty of American property rights. Therefore, the US Department of Justice (DOJ) and Federal Bureau of Investigations (FBI) had to dismiss local determinations & intervene in this matter.
LikeLiked by 1 person